Overview
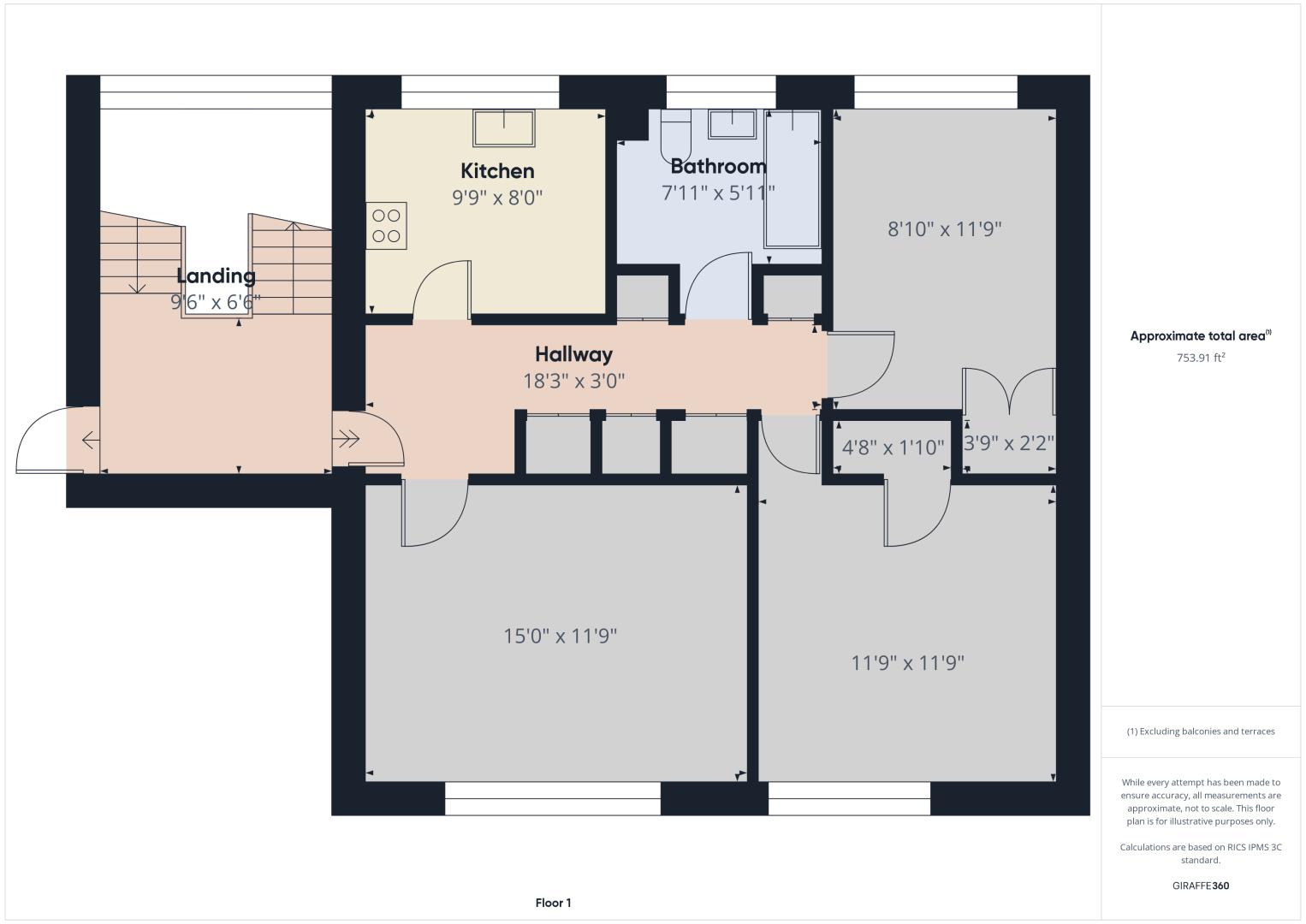
Spacious & Versatile First-Floor Apartment – Ideal for Investors or First-Time Buyers<br/><br/>Nestled on the ever-convenient Northfield Road, this spacious two-bedroom first-floor apartment presents a fantastic opportunity for a range of buyers. <br/>Whether you're an investor seeking a strong rental yield, a first-time buyer eager to step onto the property ladder, or perhaps downsizing or making a fresh start, this property is a must-see.<br/><br/>Having been successfully rented out for several years, the apartment has proven its appeal to tenants, making it a solid investment opportunity. <br/><br/>However, with its neutral décor throughout, it also offers a blank canvas for personalisation, allowing new owners to truly make it their own.<br/><br/>Thoughtfully Designed for Comfortable Living<br/>• The generously sized lounge offers an inviting space to relax, with ample room to incorporate a dining area if desired.<br/>• A well-proportioned kitchen provides plenty of workspace and storage, with space for a small table and chairs for casual dining.<br/>• Two spacious bedrooms, both benefiting from fitted wardrobes, ensuring excellent storage while keeping floor space free. The second bedroom is versatile – perfect as a guest room, home office, or child’s bedroom.<br/>• Large windows flood the apartment with natural light, creating a bright and airy atmosphere throughout.<br/>• A great amount of storage is offered, with several built-in cupboards off the hallway – a real advantage often missing in modern apartments.<br/><br/>Parking & Additional Benefits<br/>• Ample parking on a first-come, first-served basis, plus additional roadside parking.<br/>• A brick-built garage within a block, complete with a newly installed garage door—ideal for secure parking or extra storage.<br/>• Leasehold property with no onward chain, ensuring a smooth and straightforward purchase.<br/><br/>Superb Location – Convenience at Your Doorstep<br/>Situated in a well-connected area, this apartment offers easy access to:<br/>• Northfield and Cotteridge, for everyday shopping and amenities.<br/>• Stirchley’s thriving social scene, perfect for dining out, meeting friends, or celebrating special occasions.<br/>• Kings Norton Railway Station, providing excellent commuter links.<br/>• Bus routes serving the city centre, Northfield, Longbridge, Selly Oak, and beyond, including the Number 11 Outer Circle, making most of Birmingham easily accessible.<br/><br/>Whether you're looking for a low-maintenance investment, a perfect first home, or a fresh start, this apartment is a fantastic opportunity.<br/><br/>Offers Over £150,000<br/><br/>To arrange a viewing, get in touch today!<br/>
Double Glazing
Two Bedrooms
Family Bathroom
First floor flat
Nearby superb transport links
Ideal for First Time Buyers
Rental Investment Opportunity
Chain Free
Offers Invited